近年来,全球医药行业的竞争日趋激烈,制药产业链中的分工日益细化,同时随着医药外包服务机构专业化程度的不断提高,医药外包服务的内容逐渐涵盖了从疾病目标研究、药物化合物筛选、临床试验服务、工艺研发、规模化生产直至延伸到了市场销售的环节。不少国际化制药企业已将专业化外包作为自己的重要战略选择,这一动作也激发了国内不少制药企业和研发机构纷纷向 CRO/CDMO 转型,经过数十年的市场筛选、竞争与淘汰,目前还在 CRO/CDMO赛道上奔跑的企业,其制药工艺的开发、设计及优化能力,从公斤级到吨级的定制生产服务能力,即CRO/CDMO 企业自身技术优势和生产能力,都已达到一定的领先地步并各具特色,因此都能承接研发方的工艺开发和生产订单,从而使研发企业可以更专注于药物的研发[1]。
笔者有幸在近年间,接触了数个国内小分子化药的 CRO/CDO 项目,与行业的领军企业合作承担了 CRO/CDO 项目的设计。本文主要针对小分子化药的 CRO/CDO 工厂设计中的厂区总体规划、主要实验楼 / 研发楼模块化设计进行了回顾和思考。本文会从以下几个角度进行分析 :建设效率、成本与风险控制 ;建设项目中模块化设计的实施心得 ;节能减排在CRO/CDO 项目中的应用等,与大家分享。
Part.01 CRO/CDO 项目总体分析
1.1 租赁厂房 / 厂区与新建设施的建设效率、成本分析
无论是新建项目或是在既有厂区内进行技改建设,建设方首先考虑的就是投入成本与产出比的高低,投入成本包括建设周期、项目投资额,其中建设方通常按自身承接 CRO/CDO 项目的订单来设定项目的进度要求,一般项目交付使用日期是基本确定的,这也是很多建设方会考虑租赁既有厂房 / 厂区的原因,既有厂房无需考虑土建建设周期,总体建设周期缩短,其中用地审批及规划审批时间成本节省,土建设计、土建施工招投标周期以及土建建设周期都能节省 ;项目投资额中土建建设资金投入较少;同时待租厂房都已通过验收,理论上可做到“即租即用”;因此,投资费用主要为机电安装投入、工艺设备采购等 。
那么是不是所有 CRO/CDO 建设项目都应该首选厂房 / 厂区的租赁呢?这会引出另一个公用工程配套问题,也是建设方考量的重点。
1.2 公用工程配套的完善性分析
新购土地进行厂房设施的新建,尽管时间较长,但一般都会设计配套公用工程设施,包括配电系统、空调系统的冷热源、工业蒸汽系统或污水处理设施等,由此涉及的外管走向、室外地下综合管线布置等,都可以在设计阶段予以考虑;CRO/CDO 建设项目中,建设方对于供水可靠性有较高的要求,如何保证主要实验楼 / 研发楼 2~4 h 的用水,这就要求在厂区内设计有足够体积的生产加压水箱,作为停水时的应急预案 ;对于原辅料贮存、试剂储存、包材存放等配套相应的仓库设计也不可或缺 ;除此以外,在主要研发楼或生产车间内部的辅助配套,包括均布荷载设计,即楼面、屋面荷载都会按照工程项目的实际需求进行设计,充分满足各种使用要求,包括工艺设备的荷载要求、屋面暖通设备荷载要求以及屋面尾气处理设施的荷载要求等 ;单体建筑物内部,涉及较大暖通风管井、消防排烟管井等,也会在工程设计时予以考虑。因此新建厂房设施就能比较充分完善地解决问题,满足需求。
我们遇到的租赁厂房的另一些不足是既定建筑的层高不适宜、按普通生产配设的供电量不满足 ;一般标准厂房楼板、屋面荷载比较低,通常难以满足屋面配设风冷机组或尾气处理装置的荷载需求 ;另外,租赁厂房室外无使用场地安排废水收集处理设施也是一个令人头疼的问题。
总之,在 CRO/CDO 企业的初期,被动地迎合订单的进度要求,较多地采用租赁已有建筑改建的模式,但在解决上述不可避免的一个或几个不足并为解决这些不足付出一定代价后,行业内的领军企业也逐步开始探索新建厂房设施的途径。毕竟在目前的大背景下,CRO/CDO 订单对于启用时间不再是首要需求,但对设施的合理设计布置,运营的可靠性以及环保、安全、消防的合规性要求更严苛。
由此可见,租赁厂房改建和新建厂房各有优势。当订单加急,同时又找到合适的可租用建筑,改建也不失为一个不错的解决方案。当然,企业如有一定实力,根据自己的执行项目的经验,提前策划,新建合适的整体工厂,更能在 CRO/CDO 合同的竞争中占得先手。
而既有厂房 / 厂区改建项目的公用工程使用可能受限于既有厂房或园区内的资源,比如园区内可供使用电量较少,需要建设方申请电量扩容或新建开关站 ;园区内缺少污水处理设施,建设方需要自行新增设施,这就可能涉及污水管网及设施布置所需空间的重新设计 ;在主要建筑单体内,如果未预留暖通风管井,对于建设方而言需要考虑新增管井或走外立面去至屋面排风,新增管井可能涉及局部区域结构的调整 ;如果还有屋面较重设备的增加,同时屋面荷载较小,就需要设计方进行屋面结构荷载复核,根据复核结果,结构采取对应的措施以满足使用要求。还有可能遇到的限制如缺少仓储、既有消防系统无法满足现行消防水系统要求等难题——此项在早期建设的园区厂房改造项目中更易发生。
所以,在建设周期、项目综合投资与公用工程配套完善程度上的权衡,是建设方与设计方需要共同关注的重点之一。
Part.02 模块化设计
无论是新建工程项目还是既有厂房 / 厂区技术改造项目,最终目的都是为了建设完成后,核心单元设施能满足 CRO/CDO 的使用,除上文中提到的厂区总体规划时需要考虑的因素外,主要实验楼 / 研发楼内如何能更高效地利用建筑面积,即实现最大化的实验室区域与配套的公用工程辅助区域面积比。此时,模块化设计就能展现相对优势[2]。小分子化药的研发实验室更多宜考虑模块化设计,包括配套的质检分析区域同样可以按照模块化进行设计。模块化设计应用到 CRO/CDO 项目中,不仅在工程设计初期能提高设计效率,也就是说,理清一个模块的设计思路,就能顺利复制到其他同类型的实验室中 ;同样地,在后续施工中,各模块的机电安装也会是“一通百通”地进行,包括采购的工艺设备、公用工程设备等型号重复性较高,对于后期的运营维护都非常有利。
通常 CRO/CDO 企业对于一组实验室的规模会有自己的要求,诸如配制的台式通风橱数量、落地通风橱数量、实验操作人员与通风橱数量的比例等,最早回来在这类实验室内工作的海归都愿意参照国外实验室的布置设计和设备配置,而那些国内初创的 CRO/CDO 企业,基本都按行业内领军企业的配置,以减少不适配的风险,此时模块化设计也就更显出优势。根据建设方提供的 URS,再结合新建厂房或租赁厂房的土建特点,如柱间距、楼电梯等核心筒位置,进行模块化布置。可以从以下几点进行模块划分 :辅助区域,即实验操作人员办公区域、卫生间以及客梯厅等 ;公用工程区,即配电间、弱电间、气瓶间、制水间、空调机房等服务于研发实验室的公用介质配套用房 ;核心区域,即研发实验室或分析实验室。下文就将以核心筒位置、柱间距不同举例,阐述两种实验室的模块化设计。
2.1 模块化设计案例一
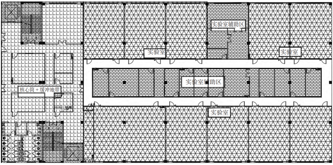
该项目是在一栋既有建筑物内进行的技术改造,研发实验室位于单体 2 层,工程设计之初,就定下了各实验室按照模块化设计思路进行。由于东西距离较长,同时在靠近中部的南、北向均有一个楼梯,因此在这个区域设计了一个“缓冲地带”,正是由于这个“缓冲地带”位于中间位置,因此适合设置配电间、弱电间,负责南侧区域的供电以及弱电[3]。
结合单体的南北向、东西向的柱间距,按照URS 要求设计模块 ;同时由于实验室内通风橱数量较多,涉及排风量也会较大,因此将南、北靠窗区域均作为实验室进行布置,为暖通新风设计提供便捷 ;同时,将实验室布置在 2 层,也是考虑到排风管道较大,在进行暖通排风设计时,结合实验室模块化布置,合理设计排风管道走向,使得去至屋面的排风管道数量最优化,排风系统的分配也最合理。
图 1 模块化设计案例一
2.2 模块化设计案例二
该项目属于新建厂区新建厂房项目,根据建设方的 URS 设置为大模块研发实验室以及小模块研发实验室。实验室内部布置完成后,设计柱间距 ;中间主走廊宽度可以满足两侧实验室可以同时开门且通行无阻。根据以上要求,确定了每栋研发楼南北长度、东西宽度,共计 4 层。南侧主要为物流通道,并根据厂区内综合管线规划,在南侧设置了外管入户、配电间、弱电间等 ;北侧主要为人流出入口,集中设置人员办公区域 。由于 4 层均为研发实验室,且每个模块通风橱数量较多,累积后排风量非常巨大,因此暖通排风管井也进行提前规划。
考虑到研发实验室为模块化设计,暖通的排风系统将模块内通风橱均分为南北两部分,分别去至实验室南北侧的管井,风管走向简单、紧凑,避免排风管道单向排布导致技术夹层局部空间紧张,屋面排风管道汇聚不均衡的问题。

图 2 模块化设计案例二
实验室模块化是一个主流实施方式,它能最大程度满足项目核心单元的设施要求,但也不是简单的复制套用,应按项目的不同条件和实际厂房设施条件予以灵活变通。
Part.03 节能减排在 CRO/CDO 小分子化药项目中的应用
项目的节能减排也是项目的一个考核点,CRO/CDO 项目也是同样要关注这点。下面分享一个实施案例。
由于 CRO/CDO 研发实验室开展的实验操作数量较多,实验中所需换热量非常大,如若采用自来水作为冷源,按照本案例的设计体量,每个单体一天的用水量在 100 t 左右,且这股作为冷源的自来水并不能直接排入市政管网,无形中增加了厂区污水处理站的处理负荷,且夏季自来水水温会随气温上升,作为实验操作中的回流冷却水效果也会较差。针对这一节能难点,设计上从单体内可以利用的“水资源”逐一研究,才有了该项目中的另外一个设计亮点 :对于空调冷凝水的回收再利用[4]。这里的空调冷凝水来自以下 2 种情况 :①指的就是空调系统为达到室内湿度的要求,将预处理至室温的空气降温至特定温度以除去空气中水分而形成的冷凝水 ;②为降低室内温度,空调内部蒸发器表面温度远低于室温,空气中的水蒸气遇到冷表面就会凝结成水而成为冷凝水 ;这些冷凝水的温度通常在 15~20 ℃。空调冷凝水量与所处理的空气量成正比,考虑到该项目待处理的风量较大,因此可利用的空调冷凝水量也就十分可观。因此,利用空调冷凝水的温度优势以及水量优势作为实验操作中的回流冷却水,不仅可以节省 40% 的用水量,且冷凝水的温度对于回流操作的冷却效果也十分优秀。从节能的角度为建设方节省了后续运营期间的成本。
Part.04 结束语
综上所述,CRO/CDO 企业无论选择新建厂区还是租赁既有厂区 / 厂房进行业务开拓,工程设计方都应在保证厂区 / 厂房必备设施的前提下,使得建设、运营、维护成本最低[5]。工程设计是个综合信息处理的复杂过程,它最终的结果是将各用户的使用需求绘制成工程图纸,各工程区域中涉及的模块化、标准化越多,设计速度以及施工进度都能得以加快,建设周期就能缩短,时间成本的节省可以帮助建设方尽早占领市场。另一方面,模块化的工艺布置设计,带来的是配套公用工程设施的模块化,小到五金零部件,大到暖通的水冷机组,由于模块化设计,能最大限度减少零件、设备的备用数量,为后期运营维护降低采购成本。每个工程项目都具有“唯一性”,我们医药工程设计人需要不断总结经验、不断优化设计方案,无论何种项目概况下,最终使得项目的设计、施工、验收顺畅且尽力避免返工,提升项目建设效率,更好服务于建设方,是设计的终极目标。本文对于 CRO/CDO之小分子化药项目工程设计的思考,期望有助于该领域同行的探讨。
参考文献
[1] 徐宁儒 . 我国医药产业园的发展现状及政策建议 [J]. 精细与专用化学品,2018,26(11):11-12.
[2] 丁伟军 . 浅谈模块化多功能合成车间的工艺设计 [J]. 医药工程设计,2005,34(6):11-13.
[3] 中华人民共和国住房和建设部,中科院建筑设计研究院有限公司 . 科研建筑设计标准 :JGJ 91—2019 [S]. 北京 :中国建筑工业出版社,2020.
[4] 李娴,杨柳,王爱平,等 . 夏季空调冷凝水回收再利用与实践分析 [J]. 节能与环保,2018,36(10):68-69.[5] 王崇晓,汪夕芳 . 精细化工及药物合成中试实验室建设与运行管理的探索 [J]. 大学化学,2018,33(3):63-69.
邵丽竹
何发
2026-04-13
2026-03-12
2026-03-10
2026-04-20
2026-03-25
2026-03-13
2026-03-10
本文以某制药产线的灌装机设备为研究对象,采用计算流体动力学(CFD)仿真技术对充氮装置的充氮性能进行分析,并结合分析结果对氮幕结构进行了优化设计。随后,针对优化方案进行性能仿真验证,结果显示优化后的顶空残氧量降低至0.252%。为了进一步验证优化方案的实际效果,将优化方案应用于实际产线进行性能测试,测得的顶空残氧量为0.68%,这一结果满足了小于1%的要求,表明其充氮保护性能已达到国际先进水平。
作者:王志刚、刘依宽、刘佳鑫
评论
加载更多